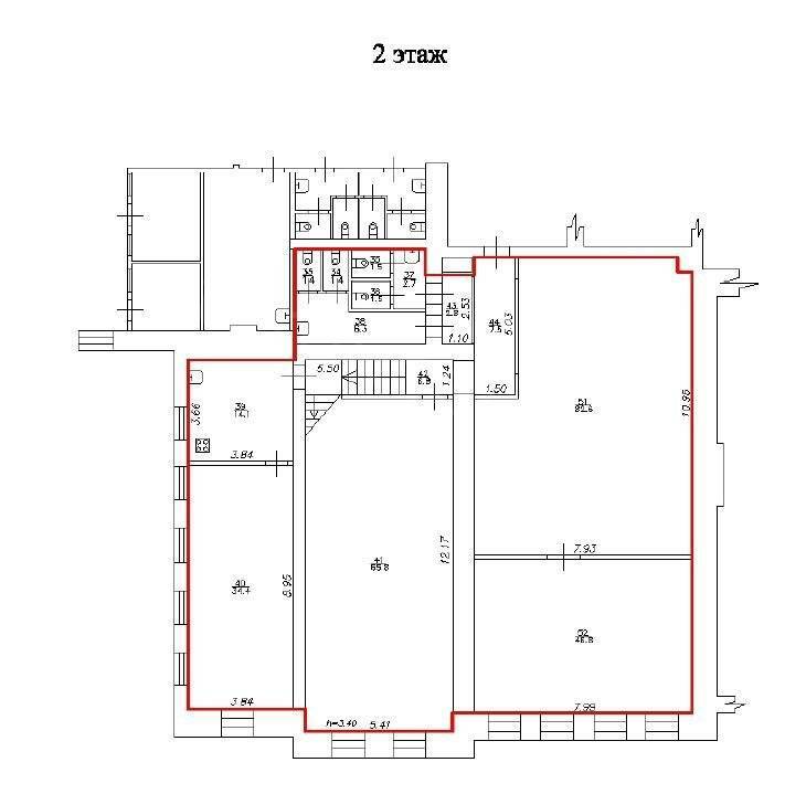
Нежилое помещение, общая площадь 347,4 к...

№ 941128Размещено: 27.01.26 15:53
г. Москва
Описание
Нежилое помещение, общая площадь 347,4 кв.м., кадастровый номер: 77:03:0003004:1733

Адрес: г. Москва, ул. Маленковская, д. 32, стр. 2А, помещение 33/2 (номера на поэтажном плане: этаж 2 – комнаты с 33 по 44, 51, 52; этаж 3 – комнаты 1,2)
Обременение: Находится в залоге АО «РМБ» БАНК.
Кадастровый N
77:03:0003004:1733
Площадь
347.4 м²
Кадастровая стоимость
46 411 653,38 руб.
Этаж
3
Собственников
1
Ипотека
Да
Залог
Нет
Арест
Нет
Обременения
1
Текущая цена:
28 999 234 ₽

Начало приема заявок
08.02.26 09:00
Оконч. приема заявок
28.03.26 18:00
Начало торгов
08.02.26 09:00
Окончание торгов
28.03.26 18:00
График падения цены
08.02.2026 г. 09:00 28 999 233,87 ₽
14.02.2026 г. 18:00 27 791 349,12 ₽
21.02.2026 г. 18:00 26 583 464,38 ₽
28.02.2026 г. 18:00 25 375 579,63 ₽
07.03.2026 г. 18:00 24 167 694,89 ₽
14.03.2026 г. 18:00 22 959 810,14 ₽
21.03.2026 г. 18:00 21 751 925,40 ₽

Похожие лоты

Краснодарский край
1/2
Публичное предложение
902 080 ₽
Помещение, назначение: нежилое, площадью 13,8 кв.м., кадастр...
Торги до: 15.02.26 23:59
Позвонить
Москва
1/15
+ 9 фото
Публичное предложение
316 000 ₽
Нежилое помещение - 14,7 кв. м, этаж 9, кадастровый номер 77...
Торги до: 17.03.26 14:00
Позвонить
Москва
1/16
+ 10 фото
Публичное предложение
415 000 ₽
Нежилое помещение - 14,6 кв. м, этаж 4, кадастровый номер 77...
Торги до: 17.03.26 14:00
Позвонить
г. Москва
Публичное предложение
32 645 800 ₽
Земельный участок, площадь: 11 500 кв. м., кад. № 50:17:0000...
Торги до: 11.03.26 16:00
Позвонить